Vuoi essere sempre aggiornato?
Lascia la tua email per ricevere in anteprima le nuove offerte immobiliari
×
CHI SIAMO
RICERCA
BLOG
CONTATTI
< Torna alla ricerca
Unifamiliare Villa
Torre Boldone
In vendita
Euro 890.000
In vendita
Euro 890.000
Codice 1211
bed 3 shower 2 crop 210 m2

DESCRIZIONE OFFERTA
Villa Singola di Nuova Costruzione – Classe Energetica A4
Torre Boldone (BG) – Zona Pedecollinare

Villa singola di nuova costruzione, in classe energetica A4, situata nella zona pedecollinare di Torre Boldone, in un contesto residenziale tranquillo e ben servito, a breve distanza da Bergamo.

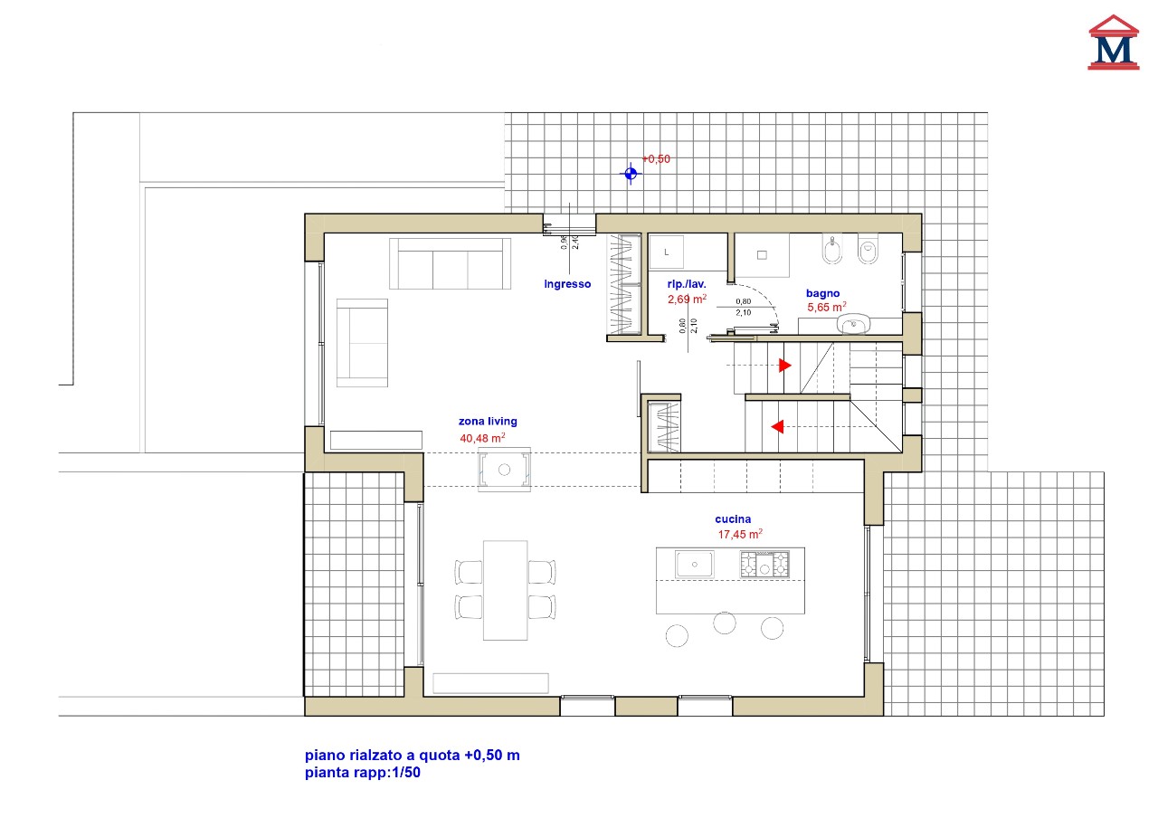
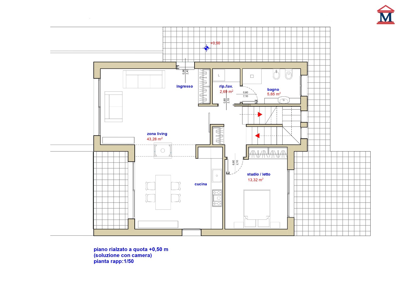
L’abitazione, caratterizzata da tecnologie costruttive moderne e ottimo isolamento, si sviluppa su tre livelli:

Al piano interrato è presente un ampio box, ideale per più autovetture e spazio accessorio. 83 Mq.

Il piano terra accoglie l’ingresso, un luminoso soggiorno open space con angolo cottura affacciato sul giardino, una camera singola, il ripostiglio/lavanderia, un bagno finestrato e un balcone. 94 Mq.

Il piano primo comprende due camere da letto ben dimensionate, un bagno finestrato e una terrazza di generose dimensioni. 94 Mq.

La proprietà è completata da un giardino privato di 520 Mq, che circonda l’abitazione e offre ampi spazi esterni vivibili.

Le immagini presenti sono da considerarsi puramente indicative e non costituiscono elemento contrattuale.

Se vuoi avere maggiori informazioni contattaci!

CARATTERISTICHE
Edificio: Unifamiliare villa
Anno: 2025
Piano: - di 2
Consegna: 4 MESI PL
Stato: Nuova costruzione
Ascensore: No
M.Q.: 210 m2
Riscaldamento: autonomo
Classe Energ.: A4
IPE: 10.12 kWh/m2
Riferimenti
Agenzia Immobiliare Mangili
Servizi di compravendita, locazioni, stime e perizie per immobili residenziali, commerciali ed industriali.

Immobiliare Mangili
P.I. 02391970163
Vendita e locazione
Valutazioni immobiliari
Garanzia per l'acquirente
Assistenza contrattuale